Leave a Message

Thank you for your message. We will be in touch with you shortly.

Explore Our Properties

Property Description

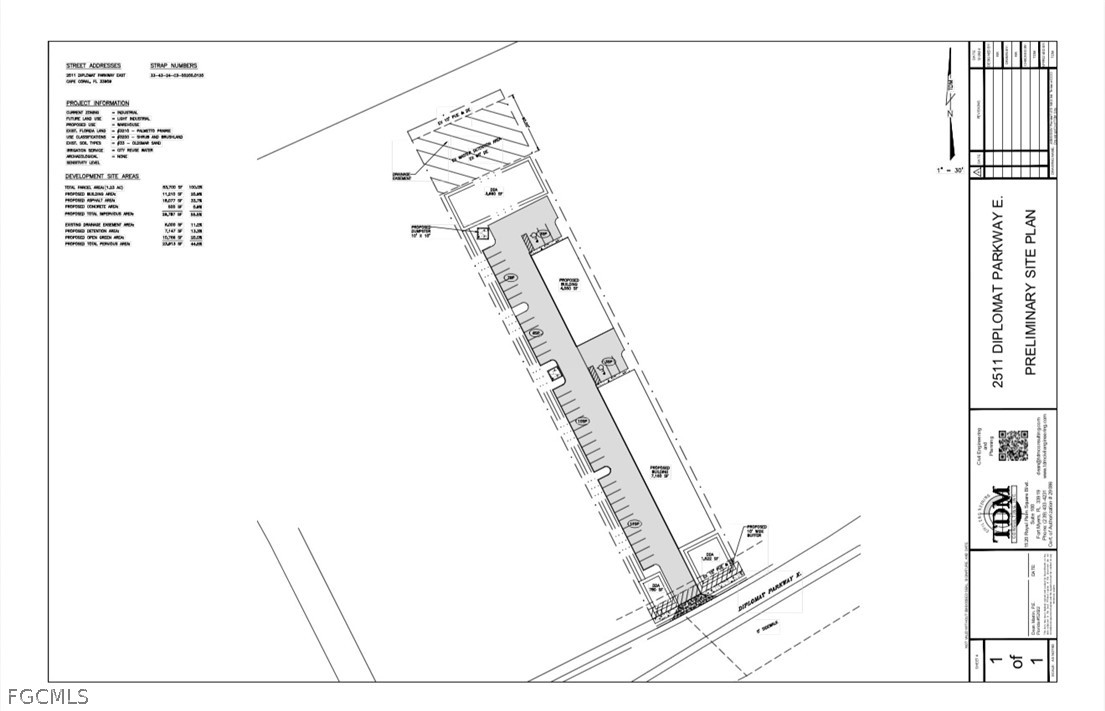
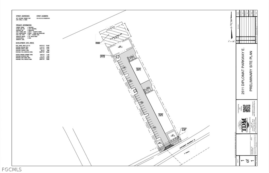
Been looking to build your own industrial warehouses , you just found here Prime Commercial C3 zoned Industrial in City of Cape Coral - Corbett Road Industrial Park. Lot dimension is 100ft wide by 535 ft +/- deep.
Survey available . City Water and sewer at site. Diplomat Parkway allows easy access to US 41 and property is within 600 feet of VA Clinic and Pine Island Road is just minutes. Proposed Site plan for 2 buildings has been reviewed by City with Approvals available upon request as well as Enviromental assessment.

Overview

Property Status
For Sale
Lot Size
1.23 Acres
MLS ID
2026009249
Property Type
Commercial

Features & Amenities

Neighborhood
Cape Coral
Water Frontage
None
Water Source
Assessment Paid
Utilites
Cable Available, Electricity Available, Sewer Available, Trash Collection, Water Available
Lot Features
Oversized Lot
Sewer
Assessment Paid
HOA Amenities
None
Sales Price
$445,000
Real Estate Tax
$2,460/yr

Downloads

2511 Diplomat PKWY E

Schedule a Tour

We would love to help you see this beautiful home! As a full-service brokerage, we can help you tour. Please submit an offer, and answer questions about the buying process.

Thank you

for your interest in 2511 Diplomat PKWY E, Cape Coral, FL 33909

2511 Diplomat PKWY E
Navigate
Cape Coral

Explore Cape Coral

read more
2511 Diplomat PKWY E
explore in 3d

Mortgage Calculator

Estimate your monthly mortgage payment, including the principal and interest, property taxes, and HOA. Adjust the values to generate a more accurate rate.
$0,000 Your Payment 20 15 65
$0,000 Your Payment

I'm Interested In

2511 Diplomat PKWY E

or
  • CallAlbert Baeza

    License #BL3019376

    (850) 225-4538
  • pretitle

    Featured Properties

    • 1824 SW 49th TER For Sale

      $800,000

      1824 SW 49th TER, Cape Coral, FL 33914

      • 3 Beds
      • 3 Baths
      • 2,298 Sq.Ft.
    • 4817 SW 18th AVE For Sale

      $790,000

      4817 SW 18th AVE, Cape Coral, FL 33914

      • 3 Beds
      • 3 Baths
      • 2,298 Sq.Ft.
    • 5711 Rose Garden RD For Sale

      $635,000

      5711 Rose Garden RD, Cape Coral, FL 33914

      • 3 Beds
      • 3 Baths
      • 1,669 Sq.Ft.
    • 1818 SW Trafalgar PKWY For Sale

      $145,000

      1818 SW Trafalgar PKWY, Cape Coral, FL 33991

    • 3726 NW 43rd AVE For Sale

      $79,000

      3726 NW 43rd AVE, Cape Coral, FL 33993

    • 3238 NW 21st TER For Sale

      $67,000

      3238 NW 21st TER, Cape Coral, FL 33993

    • 1920 NW 24th TER For Sale

      $65,000

      1920 NW 24th TER, Cape Coral, FL 33993

    • 437 NW 16th PL For Sale

      $65,000

      437 NW 16th PL, Cape Coral, FL 33993

    View All Properties

    Follow Us On Instagram